NIEUWBOUW INDIË-TERREIN ALMELO

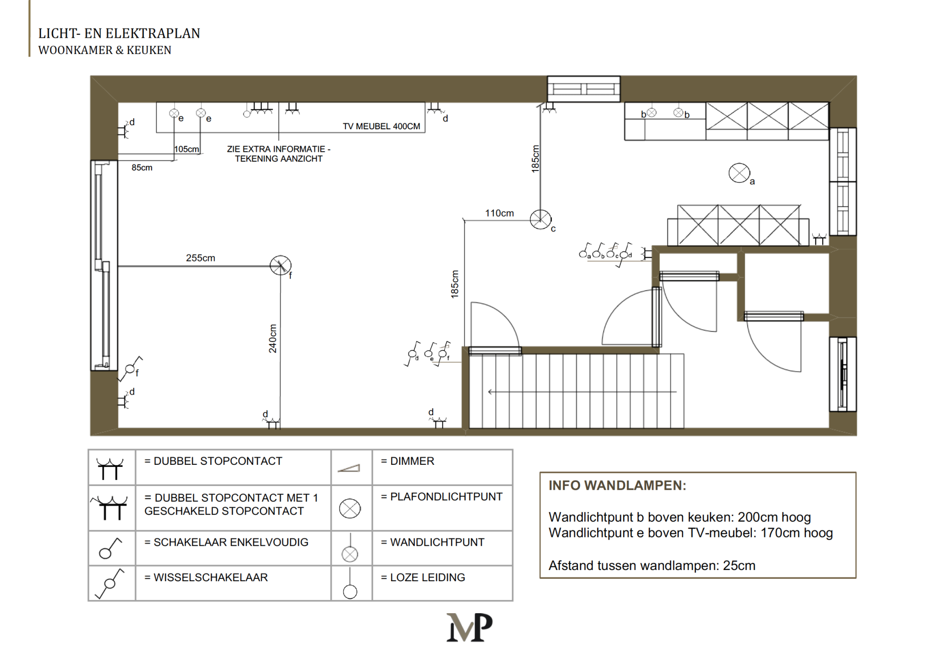
Voor deze nieuwbouwwoning zijn we gestart met een verlichtingsplan voor de woonkamer, keuken en master bedroom. Vervolgens hebben we voor deze ruimtes ook een indelingsplan gemaakt met daarbij kleuradvies, een meubelindeling en een materialenplan. De woonkamer en keuken hebben we gevisualiseerd in een 3D-ontwerp. 

Locatie: Almelo

INTERIEURPLAN 3D & BASIS

INTERIEURPLAN 2D