NIEUWBOUW
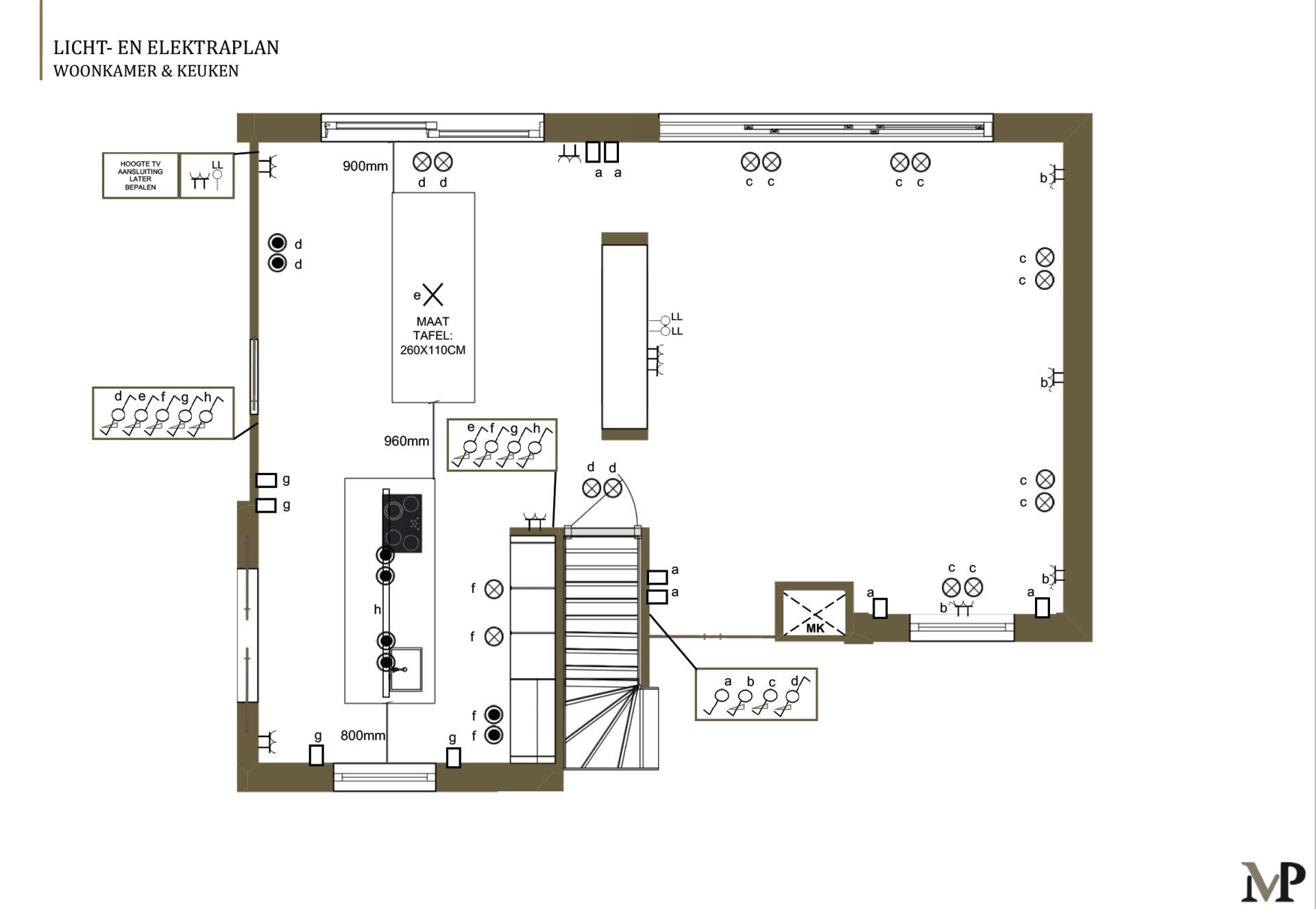
Voor deze nieuwbouwwoning is er gestart met een indelingsplan en licht- en elektraplan. Vervolgens is er een kleuradvies en materialenplan gemaakt. Dit is gevisualiseerd in een 3D-ontwerp. Rustige, neutrale kleuren die naadloos op elkaar aansluiten. Er is tot in de kleinste details nagedacht om een sfeervol geheel te creëren.
Locatie: Tubbergen
